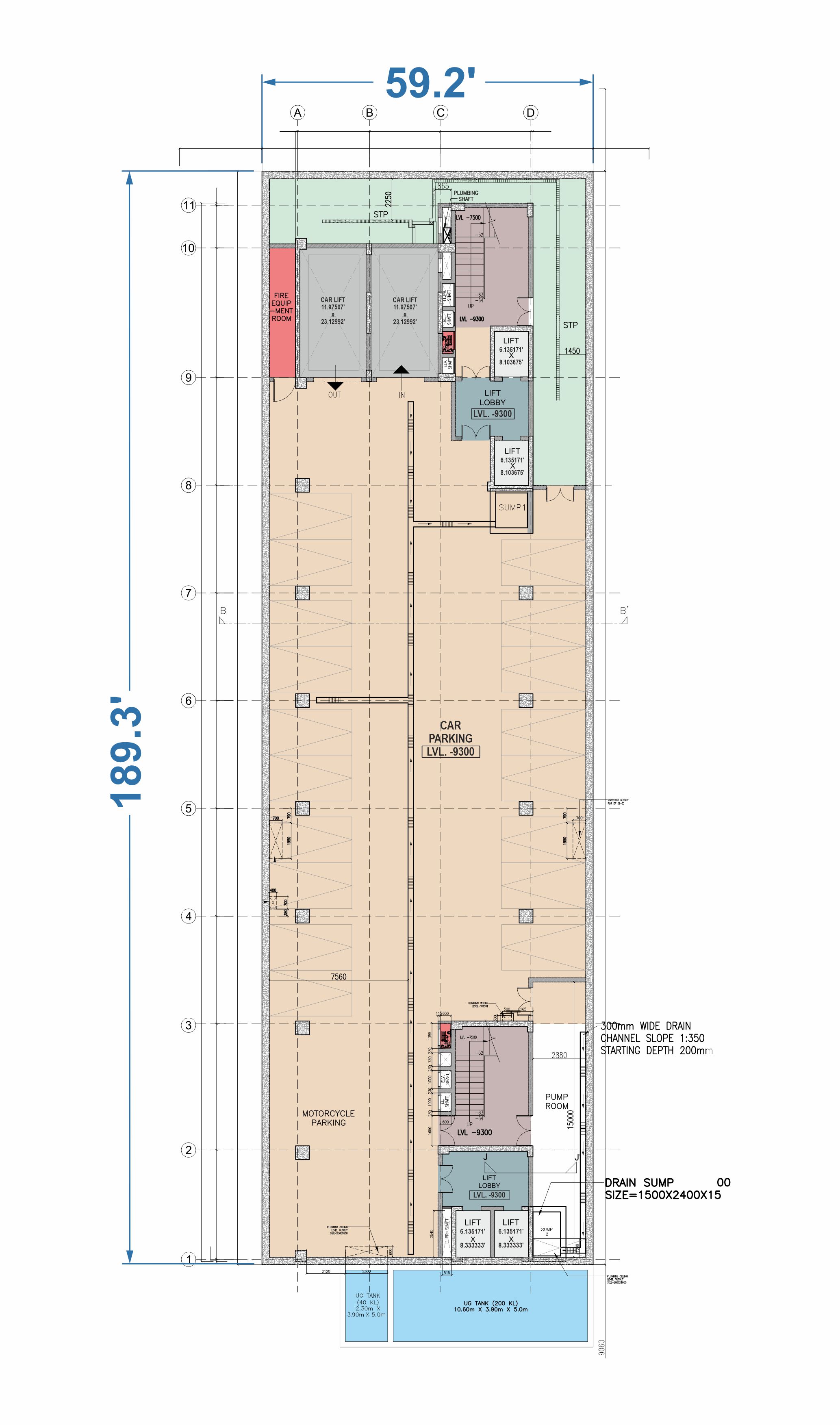
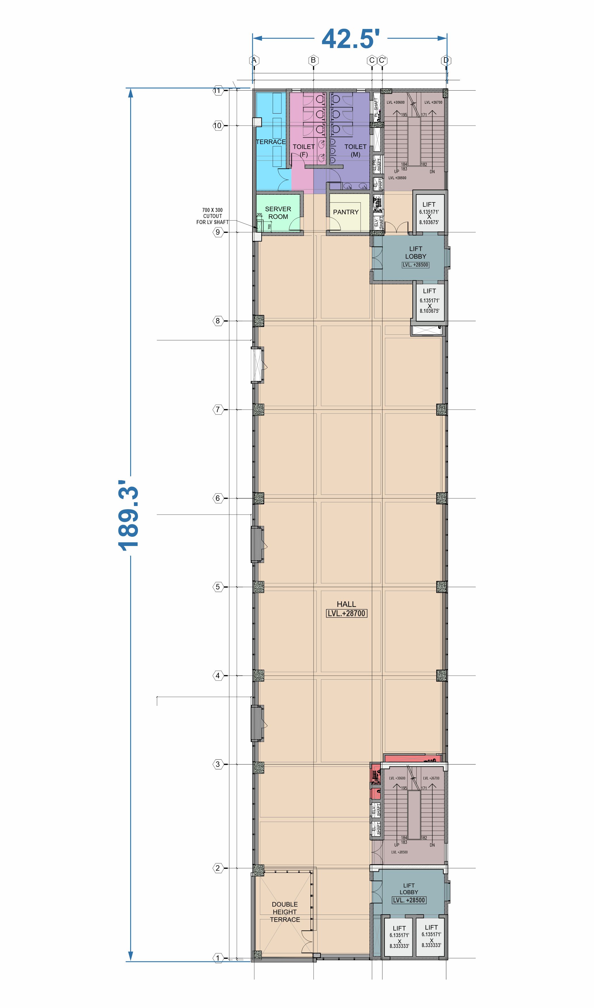
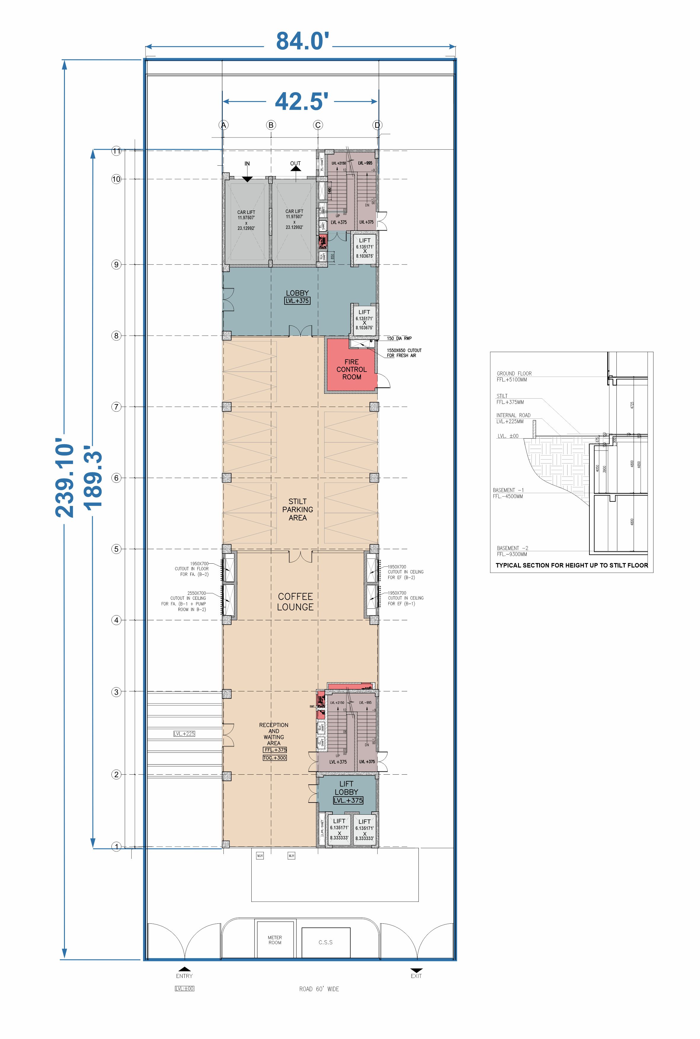
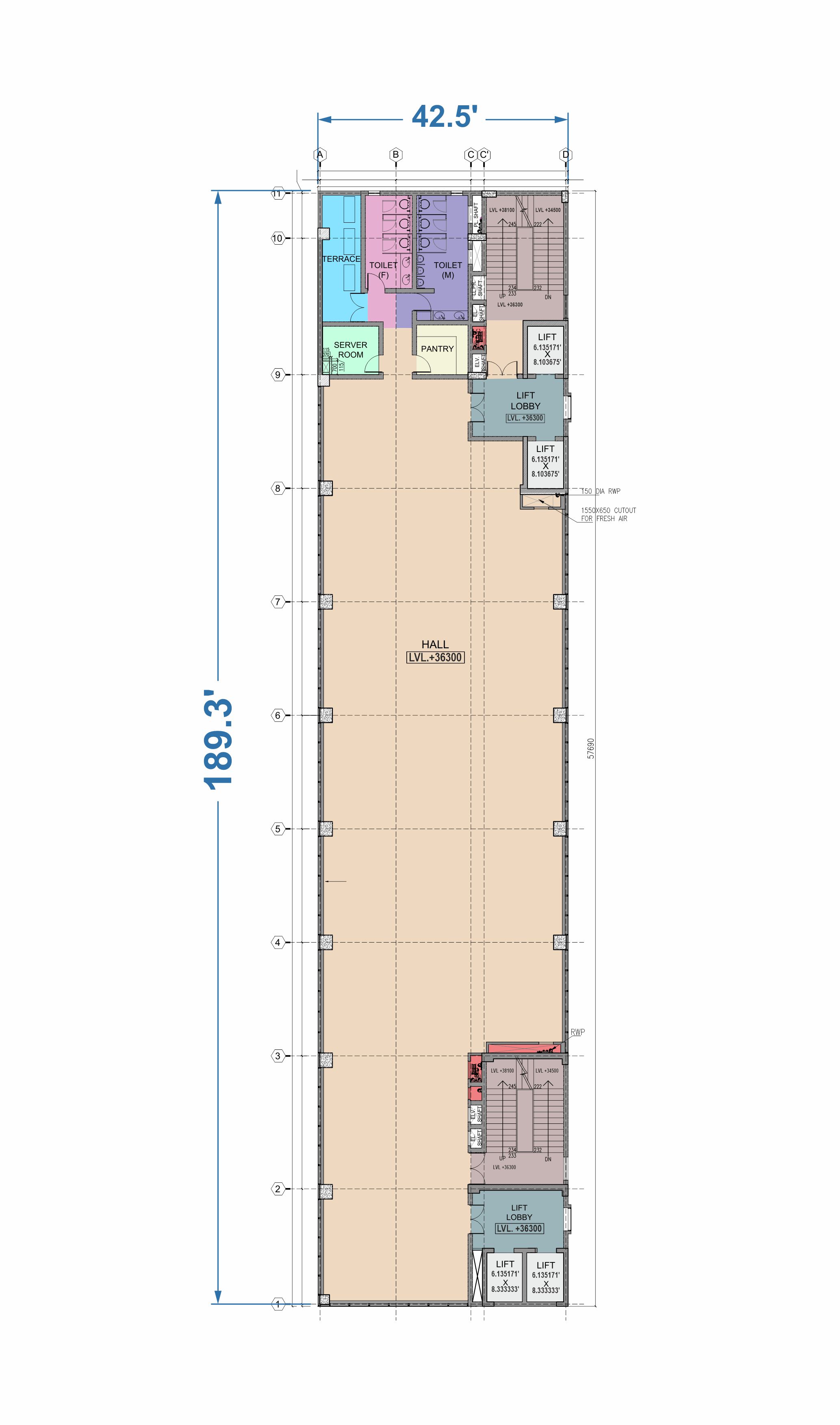
Floor Plan

Get Your Dream Office Today

Alternatively, call us direct and speak to a member of our team today...

We're open 9.00am - 5.00pm